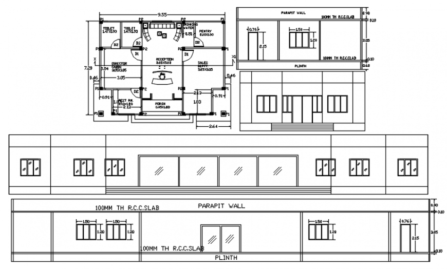
2d drawings details of office building units elevation and plan dwg file
Description
2d drawings details of office building units elevation and plan dwg file that shows work plan drawings details of building along with building different side of elevation along with section line room dimension details leveling details also included in drawings.
Uploaded by:
Eiz
Luna

